Site Plans

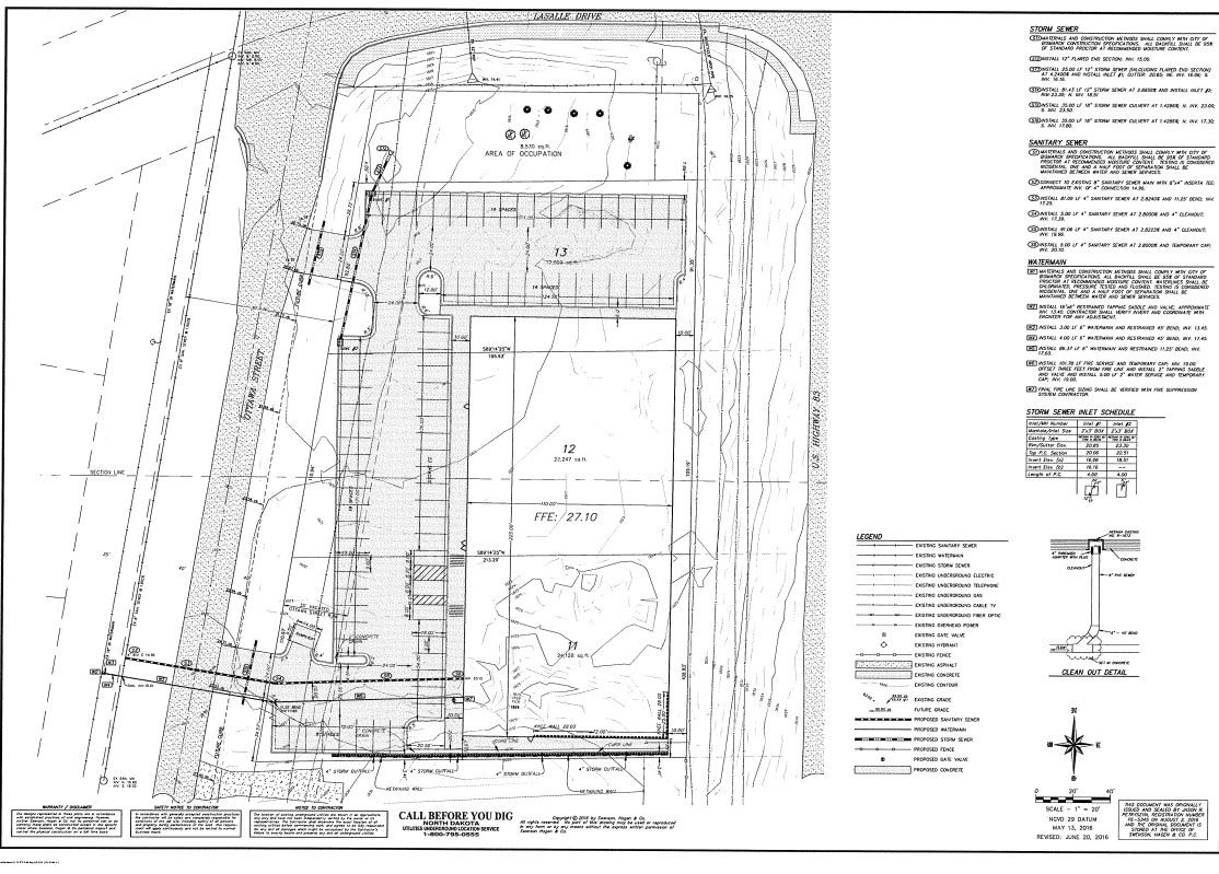
A site plan is a detailed drawing that shows the layout of a proposed development on a specific piece of land. It's a key document used in planning, engineering and construction to communicate how a project will be designed and constructed.

A site plan is required for all buildings except single family residential buildings. Twin Home Site Plans for 2-unit residential buildings should be submitted to the Engineering Department. 

All other site plans should be submitted to the Planning Department.

A typical site plan includes:

  • Property boundaries and dimensions
  • Building footprints (existing and proposed)
  • Driveways, parking areas, and sidewalks
  • Utilities (water, sewer, stormwater, electrical)
  • Topography (elevations, slopes, grading)
  • Landscaping and green space
  • Easements, setbacks, and zoning information
  • Drainage and stormwater management features

See the links located above for a complete list of the requirements for each specific type of development.

example site plan

  1. Engineering


    Physical Address
    221 N. 5th St.
    2nd Floor City / County Bldg.
    Bismarck, ND 58501


    Directions

    Mailing Address
    P.O. Box 5503
    Bismarck, ND 58506

    Fax: 701-222-6450

    Hours


    Monday through Friday

    8:00 am to 5:00 pm